Our Homes

Free standing 2 and 3 bedroom home designs

Flat and gently sloping sites for easy access

Latest material and construction methods

Innovative interior design and colour schemes

Low maintenance landscape

Airconditioned

Power, water / sewerage and gas usage paid direct

Option of ramp entry to your home

No entry / no exit fees & no stamp duty

No Council rates
What We Create For You

Modular Design And Construction
We have a number of flexible options in plans to suit your property space and living requirements. See our new release Stage 6 Plans on our home page.
.

Quality Controlled
.
Your residence will be manufactured to a high level of quality control. We only use high quality materials and skills, and a rigorous audit process follows the production process.

Environmentally Friendly
The construction is a highly recognised sustainable method of building, which coupled with carbon efficient design and manufacturing methods, is able to reduce waste and use energy more efficiently.

Design Focus
The combined skills of our design and production teams are able to use the latest design software, to create a home suitable for your needs. By using this technology, we are able to use form, materials, texture and colour to create striking designs.

MODULAR DESIGNS
Modular building techniques ensure building times and budgets are optimised in an engineered environment. Modular projects are quick and easy, with minimal onsite disruption, and have reduced construction times. Our designers work with you throughout the process.
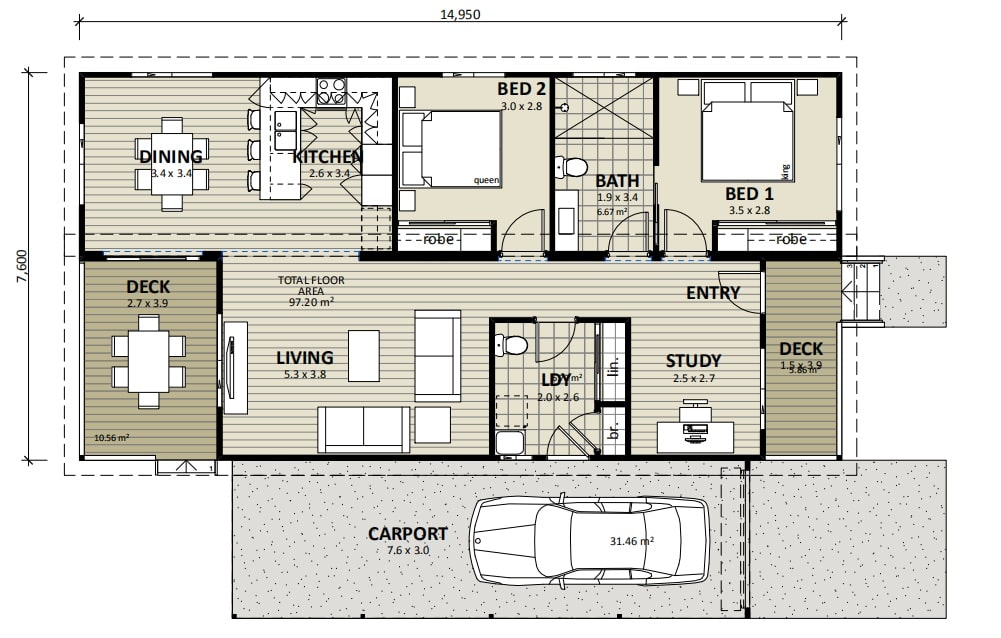
Floor Plans
The Tasman
The Wills
The Wilkins
The Lawson
Sales & Village Office Hours
Monday to Friday – 9am till 4pm
Closed Saturday and Sunday.
Please call for a village tour appointment or enquiry.
Address
39 Metford Rd, Tenambit, NSW 2323
Sales Manager: 0447 271 408
Village Manager: 0460 654 525
